Gustlnov dom

Ime: Gustlnov dom
Naročnik: Planinsko društvo Dovje- Mojstrana
Velikost objekta: 232 m2
Leto: 2022
Lokacija: bližina Aljaževega doma v Vratih
Avtor:  arhitektura Miha Kajzelj, grafika Boštjan Pavletič
Fotografije: Miran Kambič
Stanje: izvedeno

 

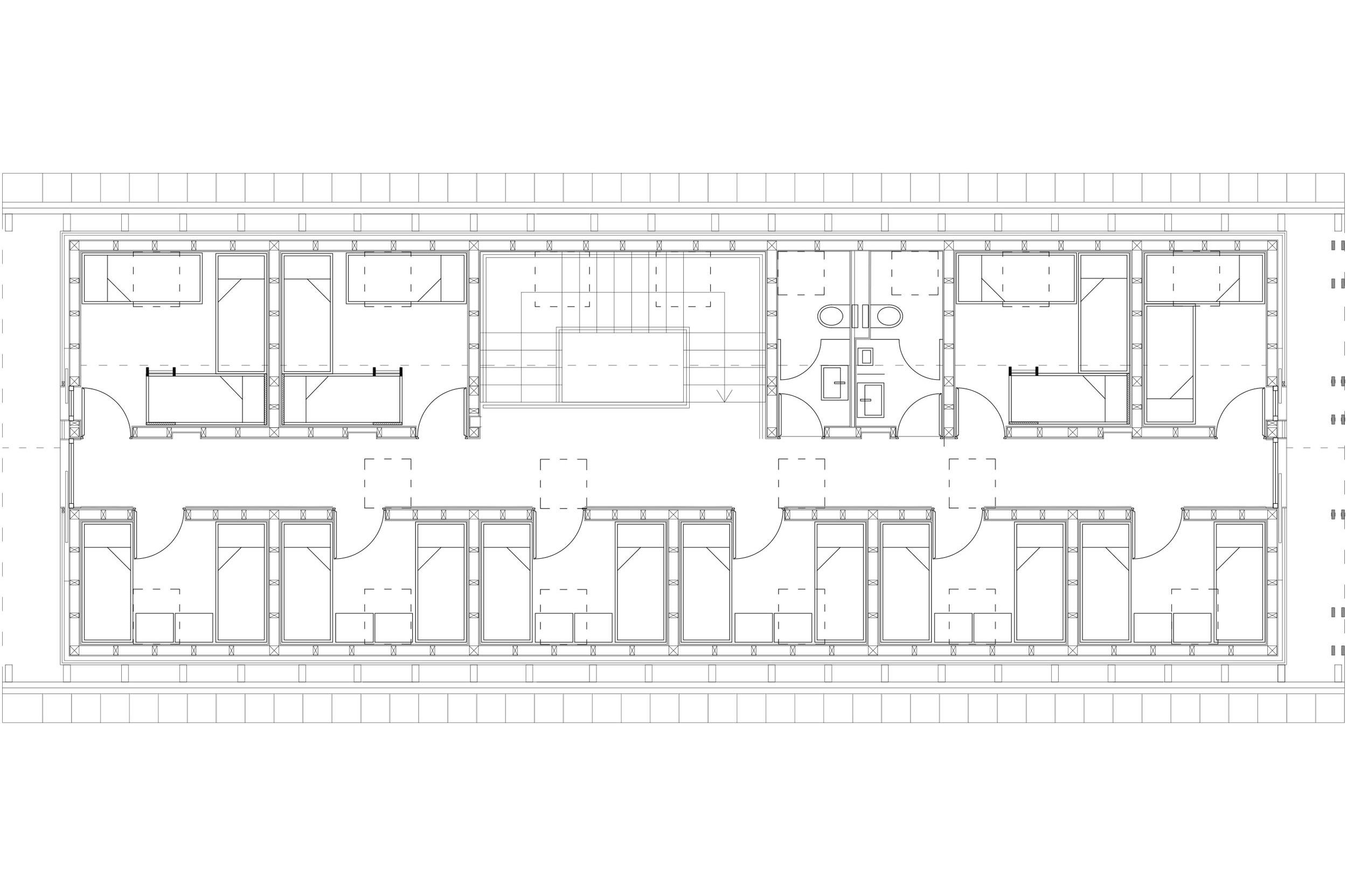
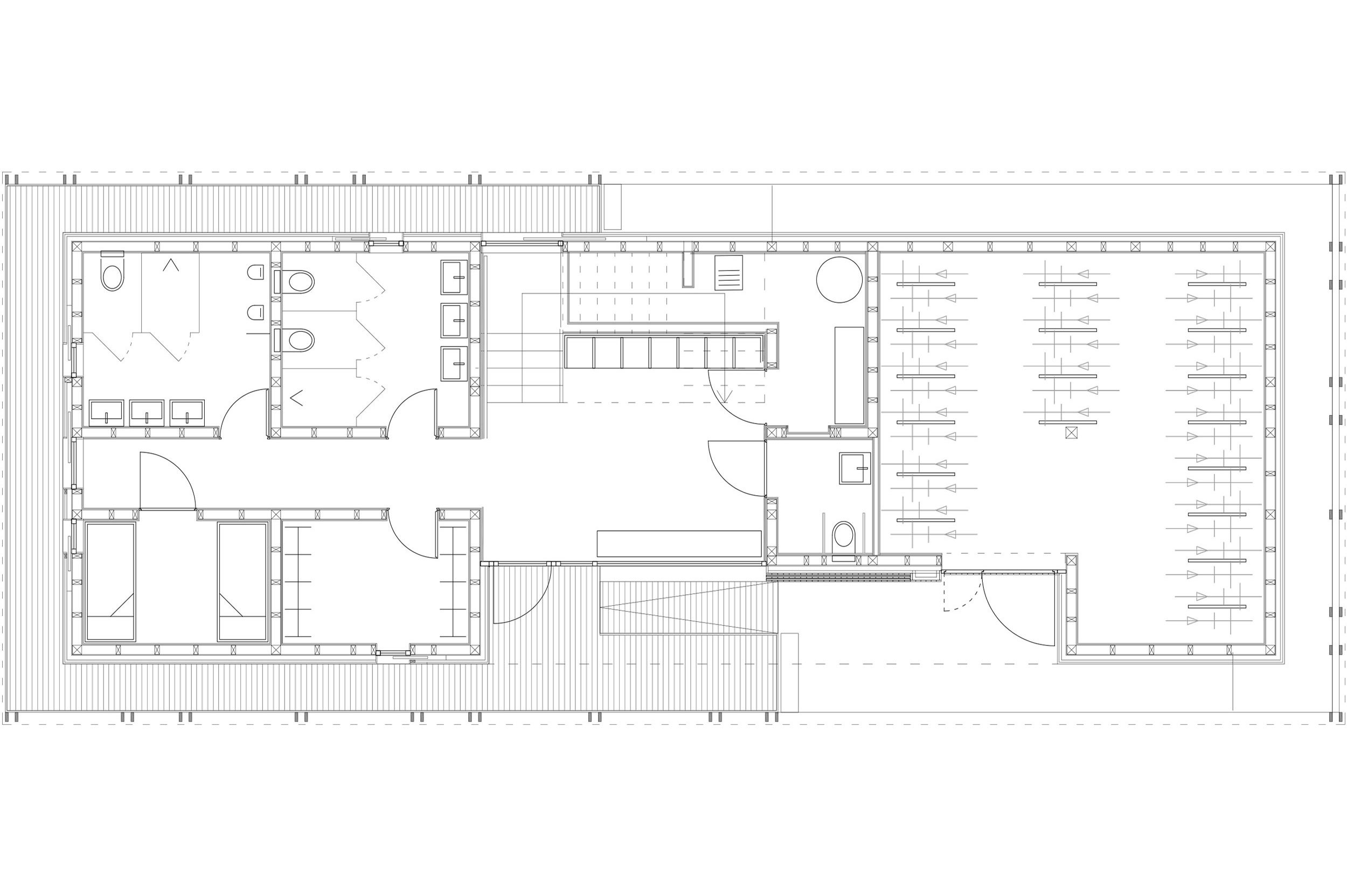
Nova gorska koča, zgrajena na mestu nekdanje, je postavljena na jaso v bližini Aljaževega doma. V gozdnatem dnu ledeniške doline so jase dragoceni prostori gorske krajine, kjer se prostor odpre, zato je umaknjena pod rob gozdnatega brega, jasa pa ostaja prazna. Aljažev dom je dominanta in s postavitvijo pravokotno na dolino na vzpetini, ustavlja prostor. Nasprotje temu je anonimna postavitev Gustlnovega doma vzdolž smeri doline pod gozd, s čimer se ohranja hierarhija lokacije.

Postavitev dopolnjuje zasnova dvignjenega pritličja, katerega zunanji podest, ki kočo obdaja s treh strani, lebdi nad travnikom. S tem se koča ‘mehko’ dotika travniških tal jase. Na robu lesenega podesta je omogočeno posedanje brez postavitve klopi na travniku. Kot predhodna koča je tudi nova preprost lesen objekt z strmo dvokapnico in metrskimi napušči. Prostor zunanjega bivanja pod napuščem je od travnika zamejen z lesenim škarjastmi stebri, na katere je obešen podest. Na čelni vzhodni fasadi je motiv razvit v višino, kjer se stebri pripenjajo na rob dvokapne strehe in s svojim vertikalnim rastrom komunicirajo s podobo visokih drevesnih debel gozda v ozadju. Hribovski karakter koče izražajo tudi t.i. ‘skakalnice’, dvignjeni deli strešine nad strešnimi okni, da sneg s strehe ne odtrga oken. Prostorna predsoba pritličja, se preko steklene stene prosto odpira na travnik in povezuje z nadkritim prostorom zunanje vhodne niše. Pritličje je namenjeno kolesarnici z ločenim vhodom, saj je promet v dolino vse bolj kolesarski ter umivalnicam in sanitarnim prostorom. Ob južni fasadi je spalnica za gibalno ovirane, saj je koča dostopna po cesti. Spalnice v nadstropju so dostopne po širokem odprtem stopnišču. Vzdolžni hodnik se z okni na koncu odpira v krajino in omogoča pogled na gore. Spalnice z dvemi ali štirimi ležišči zagotavljajo skromen standard bivanja, primeren planinski koči. Vse so opremljene s strešnimi okni s pogledom na gore in preprostim lesenim pohištvom.